Top.Mail.Ru

Главная ул., д. 19

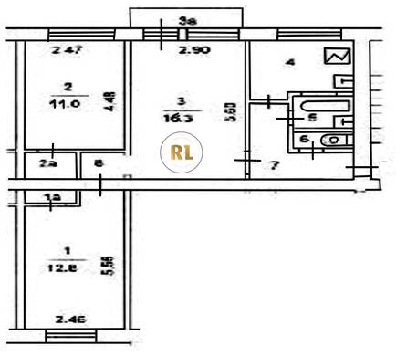
База каталог, Наибольшее кол-во этажей: 5, Имеется, I-511, Москва, Восточный, Пассажирский лифт: 0, Восточный, да, Наименьшее кол-во этажей: 5, Кол-во помещений: 80, Год ввода в эксплуатацию: 1972, Кол-во подъездов: 4, Кол-во нежилых помещений: 0, 3-комн, Кол-во жилых помещений: 80, Не присвоен, дом 19, Имеется, Грузовых лифтов: 0, Год постройки: 1972, Главная улица, 37.869235, 55.820162
Свяжитесь со мной на счет цены
10 дн.
T55S820162L37S869235T

На карте


Условия сделки

Источник


Старт продаж

Возможно заинтересует