Top.Mail.Ru

улица Приорова, д. 16, к. 3

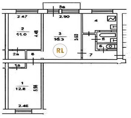
База каталог, Кол-во подъездов: 5, I-511, Москва, Коптево, Пассажирский лифт: 0, От метро: 2240, Северный, да, Наименьшее кол-во этажей: 0, Наибольшее кол-во этажей: 5, Войковская, Кол-во помещений: 100, Кол-во нежилых помещений: 0, Год ввода в эксплуатацию: 1963, 3-комн, Кол-во жилых помещений: 100, А, дом 16, корпус 3, нет, да, да, нет, нет, нет, Грузовых лифтов: 0, Год постройки: 1963, улица Приорова, 37.527561, 55.820587
Свяжитесь со мной на счет цены
10 дн.
T55S820587L37S527561T

На карте


Условия сделки

Источник


Старт продаж

Возможно заинтересует