Top.Mail.Ru

Погонный проезд, д. 23, к. 2

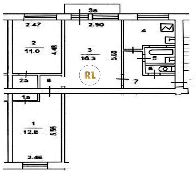
База каталог, Кол-во подъездов: 3, I-511, Москва, Богородское, Площадь парковки: 0, Пассажирский лифт: 0, От метро: 1530, Восточный, нет, Наименьшее кол-во этажей: 0, Наибольшее кол-во этажей: 5, Белокаменная, Кол-во помещений: 130, Кол-во нежилых помещений: 0, Год ввода в эксплуатацию: 1970, 3-комн, Кол-во жилых помещений: 130, С, дом 23, корпус 2, нет, да, да, да, да, нет, Имеется, Грузовых лифтов: 0, Год постройки: 1970, Погонный проезд, 37.713692, 55.820627
Свяжитесь со мной на счет цены
10 дн.
T55S820627L37S713692T

На карте


Условия сделки

Источник


Старт продаж

Возможно заинтересует