Top.Mail.Ru

улица Яблочкова, д. 18

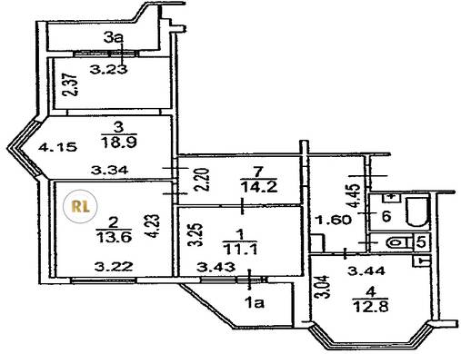
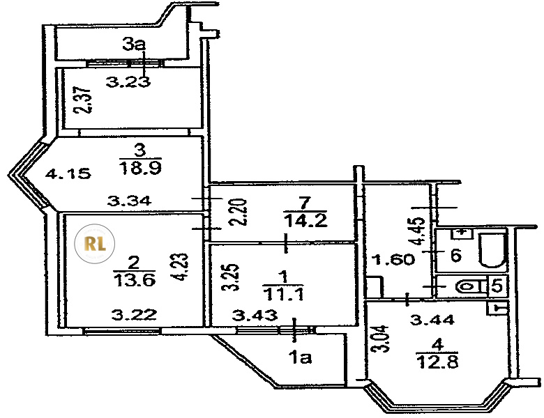
База каталог, Кол-во подъездов: 4, Отсутствует, П-44T, Москва, Бутырский, Площадь парковки: 0, Пассажирский лифт: 4, От метро: 450, Северо-Восточный, нет, Наименьшее кол-во этажей: 10, Наибольшее кол-во этажей: 17, Тимирязевская, Кол-во помещений: 219, Кол-во нежилых помещений: 3, Год ввода в эксплуатацию: 2009, 3-комн, Кол-во жилых помещений: 216, E, дом 18, да, да, да, да, да, да, Имеется, Грузовых лифтов: 4, Год постройки: 2009, улица Яблочкова, 37.581146, 55.821325
Свяжитесь со мной на счет цены
10 дн.
T55S821325L37S581146T

На карте


Условия сделки

Источник


Старт продаж

Возможно заинтересует