Top.Mail.Ru

Открытое шоссе, д. 24, к. 3

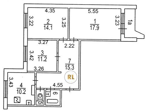
База каталог, Кол-во подъездов: 2, Имеется, П-44-1/17, Москва, Метрогородок, Площадь парковки: 0, Пассажирский лифт: 2, От метро: 1600, Восточный, нет, Наименьшее кол-во этажей: 17, Наибольшее кол-во этажей: 17, Бульвар Рокоссовского, Кол-во помещений: 138, Кол-во нежилых помещений: 3, Год ввода в эксплуатацию: 1998, 3-комн, Кол-во жилых помещений: 135, С, дом 24, корпус 3, нет, да, да, да, нет, нет, Имеется, Грузовых лифтов: 2, Год постройки: 1998, Открытое шоссе, 37.754565, 55.821664
Свяжитесь со мной на счет цены
10 дн.
T55S821664L37S754565T

На карте


Условия сделки

Источник


Старт продаж

Возможно заинтересует