Top.Mail.Ru

улица Милашенкова, д. 5, к. 1

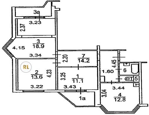
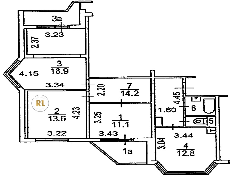
База каталог, Кол-во подъездов: 2, Отсутствует, П-44T, Москва, Бутырский, Площадь парковки: 0, Пассажирский лифт: 2, От метро: 126, Северо-Восточный, нет, Наименьшее кол-во этажей: 17, Наибольшее кол-во этажей: 17, Фонвизинская, Кол-во помещений: 131, Кол-во нежилых помещений: 0, Год ввода в эксплуатацию: 2012, 3-комн, Кол-во жилых помещений: 131, D, дом 5, корпус 1, да, да, да, да, да, да, Имеется, Грузовых лифтов: 2, Год постройки: 2012, улица Милашенкова, 37.586356, 55.823014
Свяжитесь со мной на счет цены
10 дн.
T55S823014L37S586356T

На карте


Условия сделки

Источник


Старт продаж

Возможно заинтересует