Top.Mail.Ru

Большая Академическая ул., д. 22Б

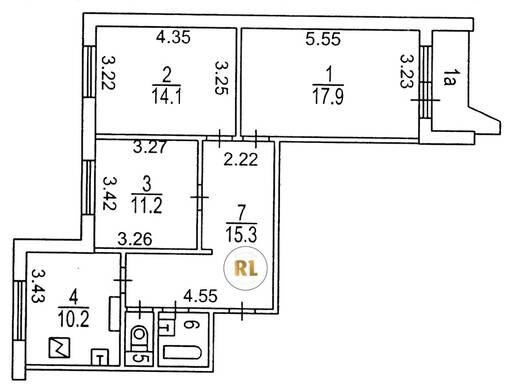
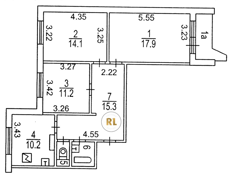
База каталог, Кол-во подъездов: 2, П-44, Москва, Коптево, Пассажирский лифт: 2, От метро: 2360, Северный, да, Наименьшее кол-во этажей: 17, Наибольшее кол-во этажей: 17, Коптево, Кол-во помещений: 129, Кол-во нежилых помещений: 1, Год ввода в эксплуатацию: 1988, 3-комн, Кол-во жилых помещений: 128, А, дом 22Б, нет, да, да, нет, нет, нет, Грузовых лифтов: 2, Год постройки: 1988, Большая Академическая улица, 37.530526, 55.823120
Свяжитесь со мной на счет цены
10 дн.
T55S823120L37S530526T

На карте


Условия сделки

Источник


Старт продаж

Возможно заинтересует