Top.Mail.Ru

улица Свободы, д. 1, к. 1

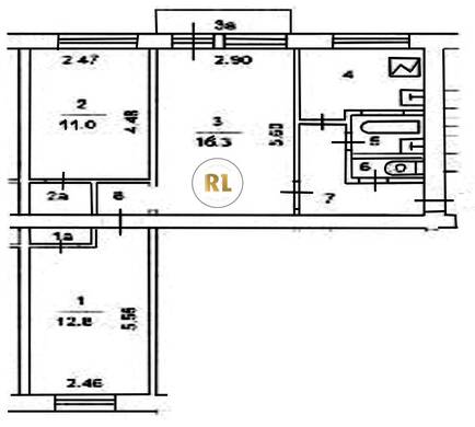
База каталог, Кол-во подъездов: 3, Имеется, I-511, Москва, Покровское-Стрешнево, Площадь парковки: 0, Пассажирский лифт: 0, От метро: 1200, Северо-Западный, нет, Наименьшее кол-во этажей: 1, Наибольшее кол-во этажей: 5, Тушинская, Кол-во помещений: 61, Кол-во нежилых помещений: 4, Год ввода в эксплуатацию: 1960, 3-комн, Кол-во жилых помещений: 57, Не присвоен, дом 1, корпус 1, нет, да, да, да, да, нет, Имеется, Грузовых лифтов: 0, Год постройки: 1960, улица Свободы, 37.450288, 55.823272
Свяжитесь со мной на счет цены
10 дн.
T55S823272L37S450288T

На карте


Условия сделки

Источник


Старт продаж

Возможно заинтересует