Top.Mail.Ru

6-й Новоподмосковный переулок, д. 1

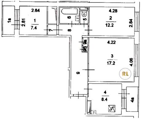
База каталог, Кол-во помещений: 82, Отсутствует, П-30, Москва, Войковский, Площадь парковки: 0, Пассажирский лифт: 2, От метро: 1280, Северный, нет, Наименьшее кол-во этажей: 14, Наибольшее кол-во этажей: 14, Войковская, Кол-во подъездов: 2, Год ввода в эксплуатацию: 2000, Кол-во нежилых помещений: 1, 3-комн, Кол-во жилых помещений: 81, дом 1, нет, да, да, да, да, нет, Отсутствует, Грузовых лифтов: 2, Год постройки: 2000, 6-й Новоподмосковный переулок, 37.512730, 55.823520
Свяжитесь со мной на счет цены
10 дн.
T55S823520L37S512730T

На карте


Условия сделки

Источник


Старт продаж

Возможно заинтересует