Top.Mail.Ru

улица Свободы, д. 1, к. 3

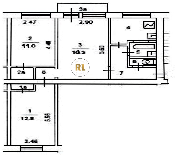
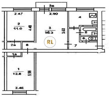
База каталог, Кол-во подъездов: 3, Имеется, I-511, Москва, Покровское-Стрешнево, Площадь парковки: 0, Пассажирский лифт: 0, От метро: 1050, Северо-Западный, нет, Наименьшее кол-во этажей: 1, Наибольшее кол-во этажей: 5, Тушинская, Кол-во помещений: 60, Кол-во нежилых помещений: 0, Год ввода в эксплуатацию: 1963, 3-комн, Кол-во жилых помещений: 60, Не присвоен, дом 1, корпус 3, нет, да, да, да, да, да, Имеется, Грузовых лифтов: 0, Год постройки: 1963, улица Свободы, 37.449623, 55.823793
Свяжитесь со мной на счет цены
10 дн.
T55S823793L37S449623T

На карте


Условия сделки

Источник


Старт продаж

Возможно заинтересует