Top.Mail.Ru

Открытое шоссе, д. 24, к. 13

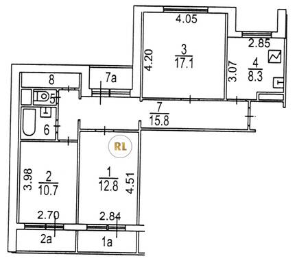
База каталог, Кол-во подъездов: 3, П-55, Москва, Метрогородок, Площадь парковки: 0, Пассажирский лифт: 3, От метро: 1970, Восточный, нет, Наименьшее кол-во этажей: 12, Наибольшее кол-во этажей: 12, Бульвар Рокоссовского, Кол-во помещений: 114, Кол-во нежилых помещений: 4, Год ввода в эксплуатацию: 1986, 3-комн, Кол-во жилых помещений: 110, D, дом 24, корпус 13, нет, да, да, да, нет, нет, Грузовых лифтов: 3, Год постройки: 1986, Открытое шоссе, 37.759300, 55.824026
Свяжитесь со мной на счет цены
10 дн.
T55S824026L37S759300T

На карте


Условия сделки

Источник


Старт продаж

Возможно заинтересует