Top.Mail.Ru

5-й Останкинский переулок, д. 11А

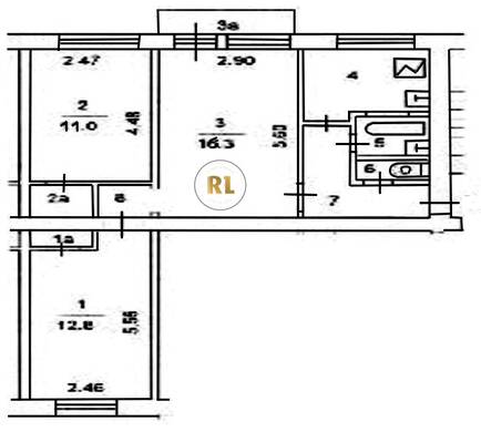
База каталог, Кол-во подъездов: 3, Имеется, I-511, Москва, Останкинский, Площадь парковки: 0, Пассажирский лифт: 0, От метро: 550, Северо-Восточный, нет, Наименьшее кол-во этажей: 5, Наибольшее кол-во этажей: 5, Улица Академика Королёва, Кол-во помещений: 60, Кол-во нежилых помещений: 0, Год ввода в эксплуатацию: 1961, 3-комн, Кол-во жилых помещений: 60, Не присвоен, дом 11А, да, да, да, да, да, да, Имеется, Грузовых лифтов: 0, Год постройки: 1961, 5-й Останкинский переулок, 37.629089, 55.824769
Свяжитесь со мной на счет цены
10 дн.
T55S824769L37S629089T

На карте


Условия сделки

Источник


Старт продаж

Возможно заинтересует