Top.Mail.Ru

улица Приорова, д. 38

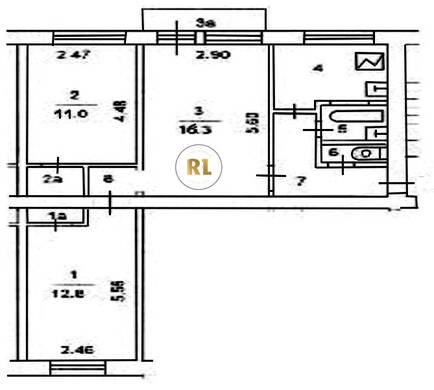
База каталог, Кол-во подъездов: 3, I-511, Москва, Коптево, Площадь парковки: 0, Пассажирский лифт: 0, От метро: 1640, Северный, нет, Наименьшее кол-во этажей: 5, Наибольшее кол-во этажей: 5, Войковская, Кол-во помещений: 60, Кол-во нежилых помещений: 0, Год ввода в эксплуатацию: 1964, 3-комн, Кол-во жилых помещений: 60, А, дом 38, нет, да, да, да, нет, нет, Грузовых лифтов: 0, Год постройки: 1964, улица Приорова, 37.518821, 55.824971
Свяжитесь со мной на счет цены
10 дн.
T55S824971L37S518821T

На карте


Условия сделки

Источник


Старт продаж

Возможно заинтересует