Top.Mail.Ru

Волоколамское шоссе, д. 96/2

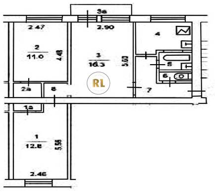
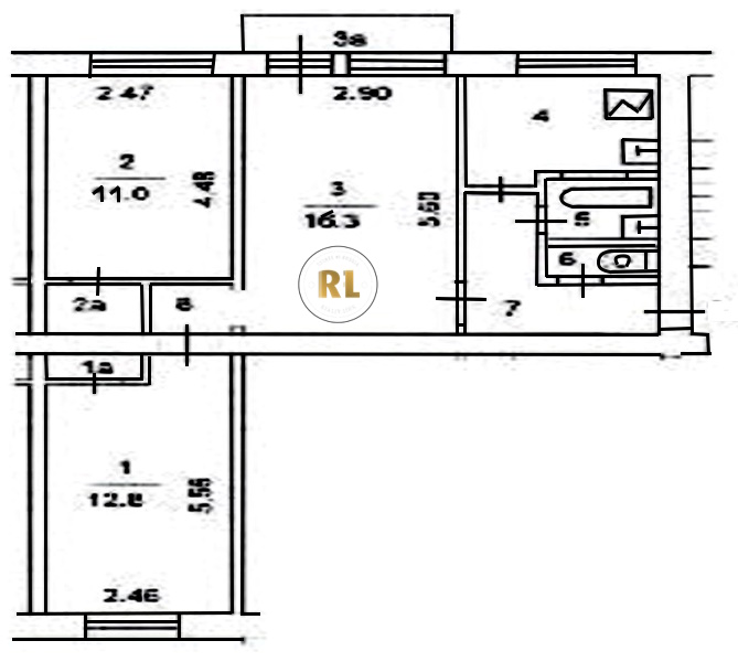
База каталог, Кол-во подъездов: 6, Имеется, I-511, Москва, Покровское-Стрешнево, Площадь парковки: 0, Пассажирский лифт: 0, От метро: 264, Северо-Западный, нет, Наименьшее кол-во этажей: 1, Наибольшее кол-во этажей: 5, Тушинская, Кол-во помещений: 115, Кол-во нежилых помещений: 3, Год ввода в эксплуатацию: 1960, 3-комн, Кол-во жилых помещений: 112, Не присвоен, дом 96/2, да, да, да, да, да, да, Имеется, Грузовых лифтов: 0, Год постройки: 1960, Волоколамское шоссе, 37.432897, 55.825118
Свяжитесь со мной на счет цены
10 дн.
T55S825118L37S432897T

На карте


Условия сделки

Источник


Старт продаж

Возможно заинтересует