Top.Mail.Ru

2-я Останкинская ул., д. 8

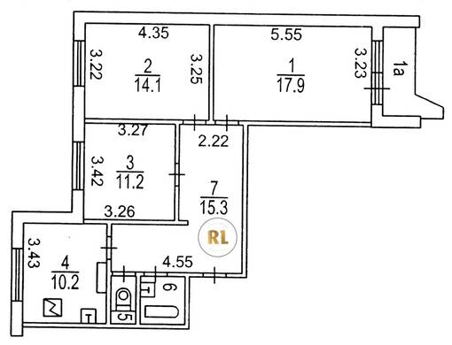
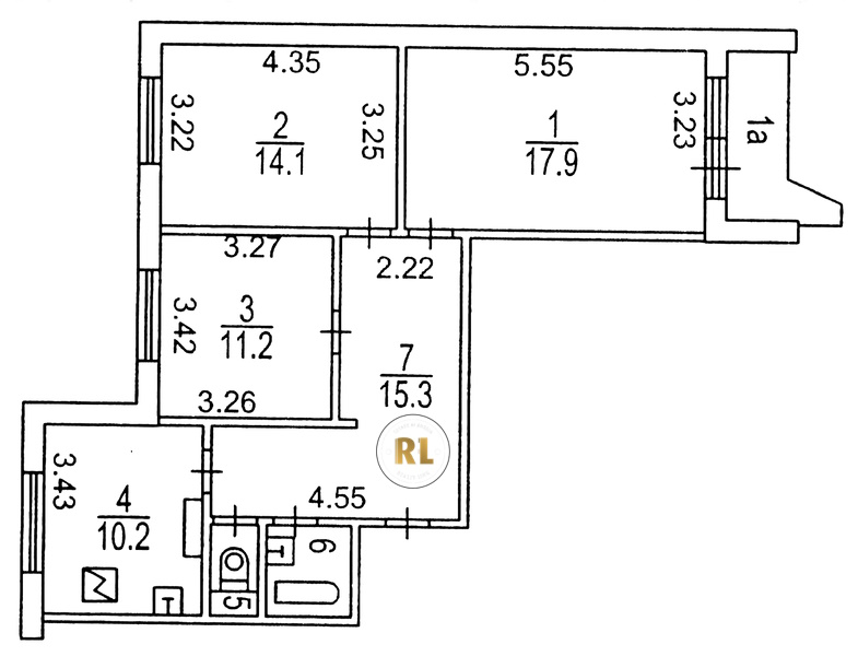
База каталог, Кол-во подъездов: 4, Отсутствует, П-44, Москва, Останкинский, Площадь парковки: 0, Пассажирский лифт: 4, От метро: 610, Северо-Восточный, нет, Наименьшее кол-во этажей: 16, Наибольшее кол-во этажей: 16, Улица Академика Королёва, Кол-во помещений: 256, Кол-во нежилых помещений: 0, Год ввода в эксплуатацию: 1981, 3-комн, Кол-во жилых помещений: 256, Не присвоен, дом 8, нет, да, да, да, да, да, Имеется, Грузовых лифтов: 4, Год постройки: 1981, 2-я Останкинская улица, 37.626987, 55.825285
31 600 000 Р
10 дн.
T55S825285L37S626987T
+

На карте


Условия сделки

Источник