Top.Mail.Ru

2-я Останкинская ул., д. 4

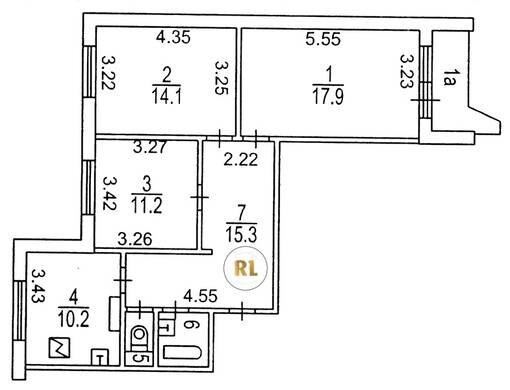
База каталог, Кол-во подъездов: 4, Имеется, П-44, Москва, Останкинский, Площадь парковки: 0, Пассажирский лифт: 4, От метро: 580, Северо-Восточный, нет, Наименьшее кол-во этажей: 16, Наибольшее кол-во этажей: 16, Улица Академика Королёва, Кол-во помещений: 255, Кол-во нежилых помещений: 1, Год ввода в эксплуатацию: 1981, 3-комн, Кол-во жилых помещений: 254, Не присвоен, дом 4, да, да, да, да, да, да, Имеется, Грузовых лифтов: 4, Год постройки: 1981, 2-я Останкинская улица, 37.624175, 55.825431
Свяжитесь со мной на счет цены
10 дн.
T55S825431L37S624175T

На карте


Условия сделки

Источник


Старт продаж

Возможно заинтересует