Top.Mail.Ru

Уссурийская ул., д. 11, к. 2

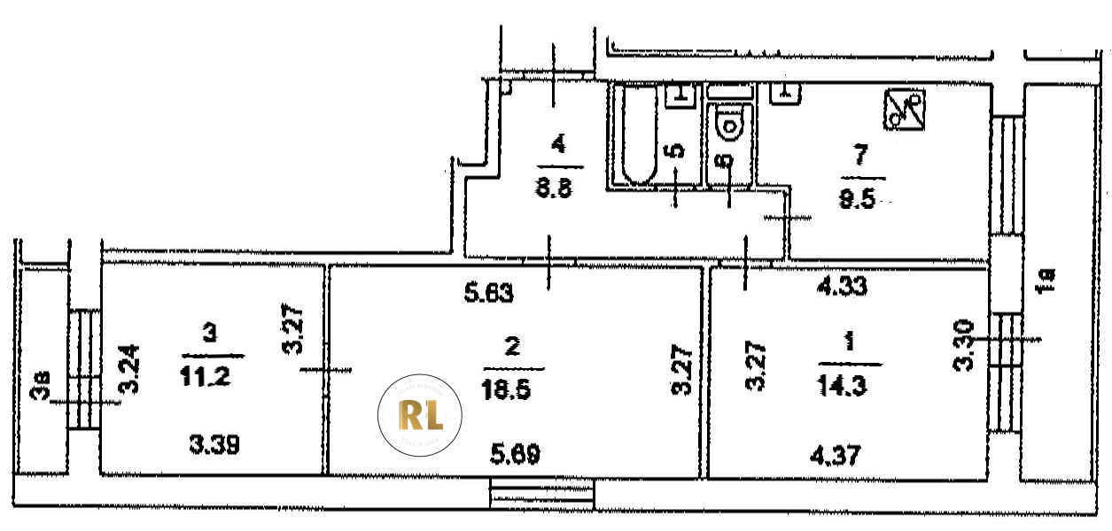
База каталог, Кол-во помещений: 95, И-209А, Москва, Гольяново, Площадь парковки: 0, Пассажирский лифт: 2, От метро: 2770, Восточный, нет, Наименьшее кол-во этажей: 14, Наибольшее кол-во этажей: 14, Щёлковская, Кол-во подъездов: 1, Год ввода в эксплуатацию: 1972, Кол-во нежилых помещений: 1, 3-комн, Кол-во жилых помещений: 94, дом 11, корпус 2, нет, да, нет, нет, нет, нет, Грузовых лифтов: 0, Год постройки: 1972, Уссурийская улица, 37.820583, 55.825608
Свяжитесь со мной на счет цены
10 дн.
T55S825608L37S820583T

На карте


Условия сделки

Источник


Старт продаж

Возможно заинтересует