Top.Mail.Ru

Открытое шоссе, д. 26, к. 5

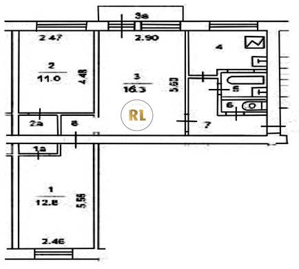
База каталог, Кол-во подъездов: 4, I-511, Москва, Метрогородок, Площадь парковки: 0, Пассажирский лифт: 0, От метро: 2440, Восточный, нет, Наименьшее кол-во этажей: 5, Наибольшее кол-во этажей: 5, Бульвар Рокоссовского, Кол-во помещений: 80, Кол-во нежилых помещений: 1, Год ввода в эксплуатацию: 1961, 3-комн, Кол-во жилых помещений: 79, D, дом 26, корпус 5, нет, да, да, нет, нет, нет, Грузовых лифтов: 0, Год постройки: 1961, Открытое шоссе, 37.764267, 55.825618
Свяжитесь со мной на счет цены
10 дн.
T55S825618L37S764267T

На карте


Условия сделки

Источник


Старт продаж

Возможно заинтересует