Top.Mail.Ru

улица Зои и Александра Космодемьянских, д. 39

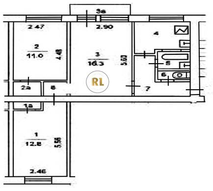
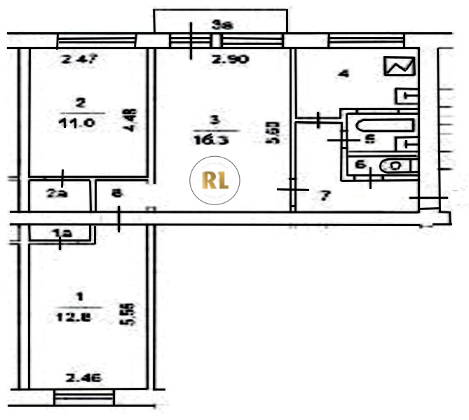
База каталог, Кол-во подъездов: 3, I-511, Москва, Коптево, Площадь парковки: 0, Пассажирский лифт: 0, От метро: 2000, Северный, нет, Наименьшее кол-во этажей: 5, Наибольшее кол-во этажей: 5, Коптево, Кол-во помещений: 48, Кол-во нежилых помещений: 0, Год ввода в эксплуатацию: 1959, 3-комн, Кол-во жилых помещений: 48, А, дом 39, нет, да, да, да, нет, нет, Грузовых лифтов: 0, Год постройки: 1959, улица Зои и Александра Космодемьянских, 37.528711, 55.825831
Свяжитесь со мной на счет цены
10 дн.
T55S825831L37S528711T

На карте


Условия сделки

Источник


Старт продаж

Возможно заинтересует