Top.Mail.Ru

улица Приорова, д. 42

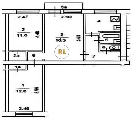
База каталог, Кол-во подъездов: 3, I-511, Москва, Коптево, Площадь парковки: 0, Пассажирский лифт: 0, От метро: 1680, Северный, нет, Наименьшее кол-во этажей: 5, Наибольшее кол-во этажей: 5, Коптево, Кол-во помещений: 60, Кол-во нежилых помещений: 0, Год ввода в эксплуатацию: 1962, 3-комн, Кол-во жилых помещений: 60, А, дом 42, нет, да, да, да, нет, нет, Грузовых лифтов: 0, Год постройки: 1962, улица Приорова, 37.518048, 55.825937
Свяжитесь со мной на счет цены
10 дн.
T55S825937L37S518048T

На карте


Условия сделки

Источник


Старт продаж

Возможно заинтересует