Top.Mail.Ru

улица Свободы, д. 5/5

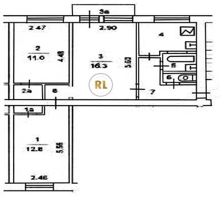
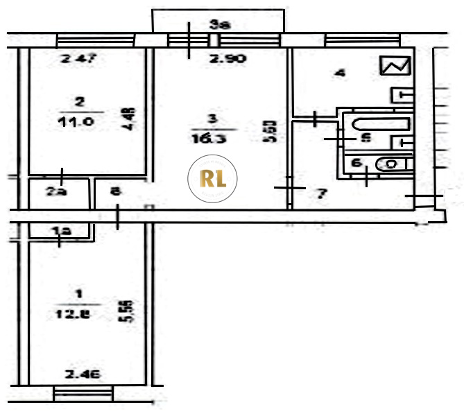
База каталог, Кол-во подъездов: 7, Имеется, I-511, Москва, Покровское-Стрешнево, Площадь парковки: 0, Пассажирский лифт: 0, От метро: 940, Северо-Западный, нет, Наименьшее кол-во этажей: 1, Наибольшее кол-во этажей: 5, Тушинская, Кол-во помещений: 138, Кол-во нежилых помещений: 1, Год ввода в эксплуатацию: 1962, 3-комн, Кол-во жилых помещений: 137, Не присвоен, дом 5/5, нет, да, да, да, да, да, Имеется, Грузовых лифтов: 0, Год постройки: 1962, улица Свободы, 37.451411, 55.826104
Свяжитесь со мной на счет цены
10 дн.
T55S826104L37S451411T

На карте


Условия сделки

Источник


Старт продаж

Возможно заинтересует