Top.Mail.Ru

Открытое шоссе, д. 23, к. 1

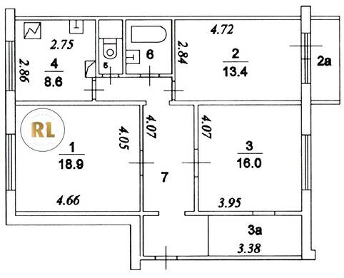
База каталог, Кол-во подъездов: 3, П-46M, Москва, Метрогородок, Площадь парковки: 0, Пассажирский лифт: 3, От метро: 1990, Восточный, нет, Наименьшее кол-во этажей: 9, Наибольшее кол-во этажей: 9, Бульвар Рокоссовского, Кол-во помещений: 81, Кол-во нежилых помещений: 9, Год ввода в эксплуатацию: 2004, 3-комн, Кол-во жилых помещений: 72, С, дом 23, корпус 1, нет, да, да, да, нет, нет, Грузовых лифтов: 0, Год постройки: 2004, Открытое шоссе, 37.752805, 55.826412
Свяжитесь со мной на счет цены
10 дн.
T55S826412L37S752805T

На карте


Условия сделки

Источник


Старт продаж

Возможно заинтересует