Top.Mail.Ru

Открытое шоссе, д. 26, к. 9

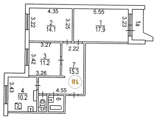
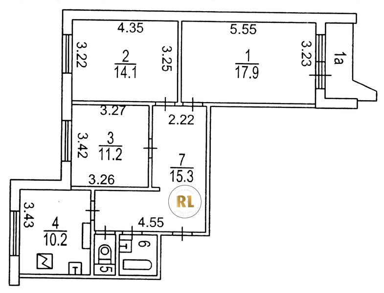
База каталог, Кол-во подъездов: 4, Отсутствует, П-44-1/17, Москва, Метрогородок, Площадь парковки: 0, Пассажирский лифт: 4, От метро: 2460, Восточный, нет, Наименьшее кол-во этажей: 17, Наибольшее кол-во этажей: 17, Бульвар Рокоссовского, Кол-во помещений: 138, Кол-во нежилых помещений: 3, Год ввода в эксплуатацию: 1997, 3-комн, Кол-во жилых помещений: 135, С, дом 26, корпус 9, нет, да, да, нет, нет, нет, Отсутствует, Грузовых лифтов: 4, Год постройки: 1997, Открытое шоссе, 37.765408, 55.826711
Свяжитесь со мной на счет цены
10 дн.
T55S826711L37S765408T

На карте


Условия сделки

Источник


Старт продаж

Возможно заинтересует