Top.Mail.Ru

Открытое шоссе, д. 28, к. 7

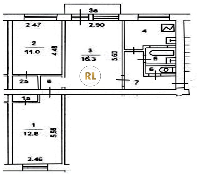
База каталог, Кол-во нежилых помещений: 1, I-511, Москва, Метрогородок, Пассажирский лифт: 0, От метро: 2770, Восточный, да, Наименьшее кол-во этажей: 5, Наибольшее кол-во этажей: 5, Бульвар Рокоссовского, Кол-во помещений: 61, Кол-во подъездов: 3, 3-комн, Год ввода в эксплуатацию: 1965, Кол-во жилых помещений: 60, D, дом 28, корпус 7, нет, да, нет, нет, нет, нет, Имеется, Грузовых лифтов: 0, Год постройки: 1965, Открытое шоссе, 37.768606, 55.826857
Свяжитесь со мной на счет цены
10 дн.
T55S826857L37S768606T

На карте


Условия сделки

Источник


Старт продаж

Возможно заинтересует