Top.Mail.Ru

Тушинская ул., д. 6

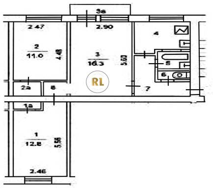
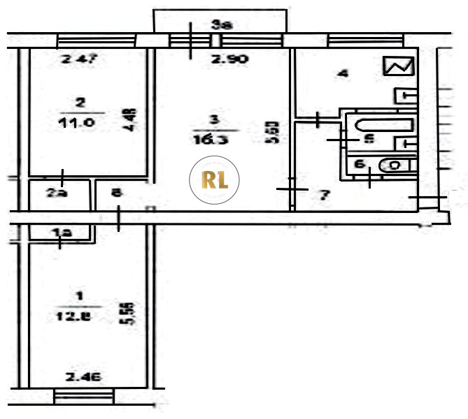
База каталог, Кол-во подъездов: 3, Имеется, I-511, Москва, Покровское-Стрешнево, Площадь парковки: 0, Пассажирский лифт: 0, От метро: 910, Северо-Западный, нет, Наименьшее кол-во этажей: 1, Наибольшее кол-во этажей: 5, Тушинская, Кол-во помещений: 60, Кол-во нежилых помещений: 0, Год ввода в эксплуатацию: 1961, 3-комн, Кол-во жилых помещений: 60, Не присвоен, дом 6, нет, да, да, да, да, да, Имеется, Грузовых лифтов: 0, Год постройки: 1961, Тушинская улица, 37.450944, 55.827156
Свяжитесь со мной на счет цены
10 дн.
T55S827156L37S450944T

На карте


Условия сделки

Источник


Старт продаж

Возможно заинтересует