Top.Mail.Ru

Коптевская ул., д. 8

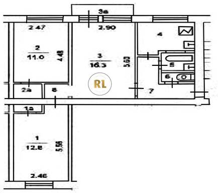
База каталог, Кол-во подъездов: 4, I-511, Москва, Коптево, Площадь парковки: 0, Пассажирский лифт: 0, От метро: 1490, Северный, нет, Наименьшее кол-во этажей: 5, Наибольшее кол-во этажей: 5, Коптево, Кол-во помещений: 73, Кол-во нежилых помещений: 0, Год ввода в эксплуатацию: 1961, 3-комн, Кол-во жилых помещений: 73, А, дом 8, нет, да, да, да, да, нет, Грузовых лифтов: 0, Год постройки: 1961, Коптевская улица, 37.517671, 55.827403
Свяжитесь со мной на счет цены
10 дн.
T55S827403L37S517671T

На карте


Условия сделки

Источник


Старт продаж

Возможно заинтересует