Top.Mail.Ru

проезд Стратонавтов, д. 17

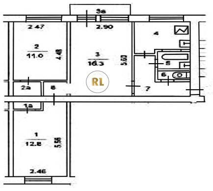
База каталог, Кол-во подъездов: 3, Имеется, I-511, Москва, Покровское-Стрешнево, Площадь парковки: 0, Пассажирский лифт: 0, От метро: 720, Северо-Западный, нет, Наименьшее кол-во этажей: 1, Наибольшее кол-во этажей: 5, Тушинская, Кол-во помещений: 61, Кол-во нежилых помещений: 1, Год ввода в эксплуатацию: 1962, 3-комн, Кол-во жилых помещений: 60, Не присвоен, дом 17, нет, да, да, да, да, да, Имеется, Грузовых лифтов: 0, Год постройки: 1962, проезд Стратонавтов, 37.427920, 55.827585
Свяжитесь со мной на счет цены
10 дн.
T55S827585L37S427920T

На карте


Условия сделки

Источник


Старт продаж

Возможно заинтересует