Top.Mail.Ru

улица Свободы, д. 9

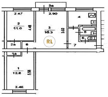
База каталог, Кол-во подъездов: 3, Имеется, I-511, Москва, Покровское-Стрешнево, Площадь парковки: 0, Пассажирский лифт: 0, От метро: 940, Северо-Западный, нет, Наименьшее кол-во этажей: 1, Наибольшее кол-во этажей: 5, Тушинская, Кол-во помещений: 52, Кол-во нежилых помещений: 4, Год ввода в эксплуатацию: 1960, 3-комн, Кол-во жилых помещений: 48, Не присвоен, дом 9, нет, да, да, да, да, да, Имеется, Грузовых лифтов: 0, Год постройки: 1960, улица Свободы, 37.451510, 55.827606
Свяжитесь со мной на счет цены
10 дн.
T55S827606L37S451510T

На карте


Условия сделки

Источник


Старт продаж

Возможно заинтересует