Top.Mail.Ru

проезд Стратонавтов, д. 13, к. 2

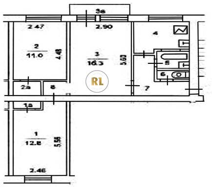
База каталог, Кол-во подъездов: 4, Имеется, I-511, Москва, Покровское-Стрешнево, Площадь парковки: 0, Пассажирский лифт: 0, От метро: 420, Северо-Западный, нет, Наименьшее кол-во этажей: 1, Наибольшее кол-во этажей: 5, Тушинская, Кол-во помещений: 80, Кол-во нежилых помещений: 0, Год ввода в эксплуатацию: 1961, 3-комн, Кол-во жилых помещений: 80, Не присвоен, дом 13, корпус 2, да, да, да, да, да, да, Имеется, Грузовых лифтов: 0, Год постройки: 1961, проезд Стратонавтов, 37.431118, 55.827778
Свяжитесь со мной на счет цены
10 дн.
T55S827778L37S431118T

На карте


Условия сделки

Источник


Старт продаж

Возможно заинтересует