Top.Mail.Ru

улица Милашенкова, д. 12

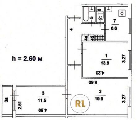
База каталог, Кол-во подъездов: 6, Отсутствует, I605-АМ, Москва, Бутырский, Площадь парковки: 0, Пассажирский лифт: 12, От метро: 600, Северо-Восточный, нет, Наименьшее кол-во этажей: 12, Наибольшее кол-во этажей: 12, Фонвизинская, Кол-во помещений: 287, Кол-во нежилых помещений: 0, Год ввода в эксплуатацию: 1980, 3-комн, Кол-во жилых помещений: 287, E, дом 12, нет, да, да, да, да, да, Имеется, Грузовых лифтов: 0, Год постройки: 1980, улица Милашенкова, 37.582349, 55.827808
16 000 000 Р
10 дн.
T55S827808L37S582349T
+

На карте


Условия сделки

Источник


Старт продаж

Возможно заинтересует