Top.Mail.Ru

улица Свободы, д. 11/1

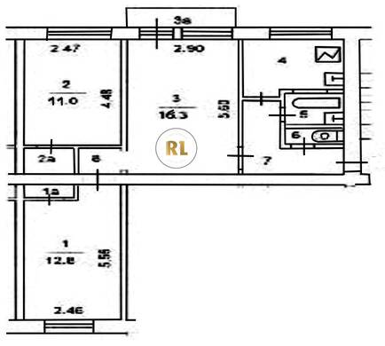
База каталог, Кол-во подъездов: 6, Имеется, I-511, Москва, Покровское-Стрешнево, Площадь парковки: 0, Пассажирский лифт: 0, От метро: 1020, Северо-Западный, нет, Наименьшее кол-во этажей: 1, Наибольшее кол-во этажей: 5, Тушинская, Кол-во помещений: 104, Кол-во нежилых помещений: 8, Год ввода в эксплуатацию: 1960, 3-комн, Кол-во жилых помещений: 96, Не присвоен, дом 11/1, нет, да, да, да, да, да, Имеется, Грузовых лифтов: 0, Год постройки: 1960, улица Свободы, 37.452031, 55.828025
Свяжитесь со мной на счет цены
10 дн.
T55S828025L37S452031T

На карте


Условия сделки

Источник


Старт продаж

Возможно заинтересует