Top.Mail.Ru

Коптевская ул., д. 10

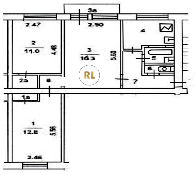
База каталог, Кол-во подъездов: 4, I-511, Москва, Коптево, Площадь парковки: 0, Пассажирский лифт: 0, От метро: 1380, Северный, нет, Наименьшее кол-во этажей: 5, Наибольшее кол-во этажей: 5, Коптево, Кол-во помещений: 80, Кол-во нежилых помещений: 0, Год ввода в эксплуатацию: 1959, 3-комн, Кол-во жилых помещений: 80, А, дом 10, нет, да, да, да, да, нет, Грузовых лифтов: 0, Год постройки: 1959, Коптевская улица, 37.518075, 55.828187
Свяжитесь со мной на счет цены
10 дн.
T55S828187L37S518075T

На карте


Условия сделки

Источник


Старт продаж

Возможно заинтересует