Top.Mail.Ru

Дмитровское шоссе, д. 33, к. 7

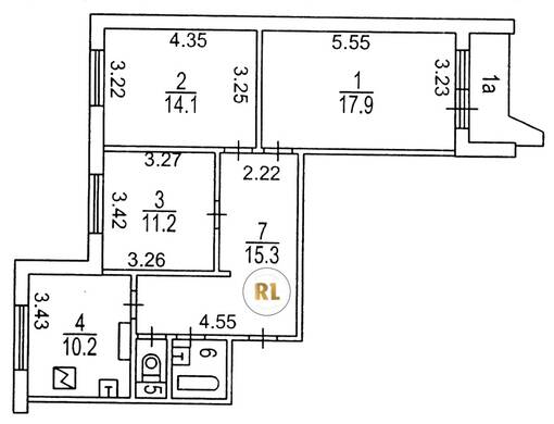
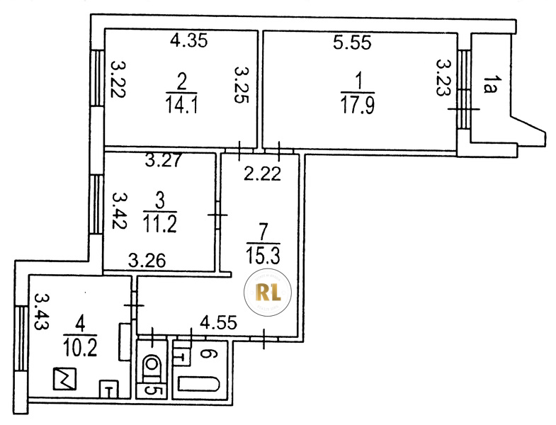
База каталог, Кол-во подъездов: 2, Имеется, П-44, Москва, Тимирязевский, Пассажирский лифт: 4, От метро: 810, Северный, да, Наименьшее кол-во этажей: 17, Наибольшее кол-во этажей: 17, Петровско-Разумовская, Кол-во помещений: 135, Кол-во нежилых помещений: 0, Год ввода в эксплуатацию: 1994, 3-комн, Кол-во жилых помещений: 135, дом 33, корпус 7, нет, да, да, да, да, да, Имеется, Грузовых лифтов: 0, Год постройки: 1994, Дмитровское шоссе, 37.566970, 55.828339
Свяжитесь со мной на счет цены
10 дн.
T55S828339L37S566970T

На карте


Условия сделки

Источник


Старт продаж

Возможно заинтересует