Top.Mail.Ru

Открытое шоссе, д. 27, к. 5

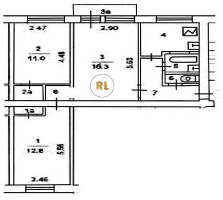
База каталог, Кол-во подъездов: 3, I-511, Москва, Метрогородок, Площадь парковки: 0, Пассажирский лифт: 0, От метро: 2290, Восточный, нет, Наименьшее кол-во этажей: 5, Наибольшее кол-во этажей: 5, Бульвар Рокоссовского, Кол-во помещений: 61, Кол-во нежилых помещений: 1, Год ввода в эксплуатацию: 1964, 3-комн, Кол-во жилых помещений: 60, D, дом 27, корпус 5, нет, да, да, нет, нет, нет, Отсутствует, Грузовых лифтов: 0, Год постройки: 1964, Открытое шоссе, 37.756209, 55.828339
Свяжитесь со мной на счет цены
10 дн.
T55S828339L37S756209T

На карте


Условия сделки

Источник


Старт продаж

Возможно заинтересует