Top.Mail.Ru

улица Академика Комарова, д. 1В

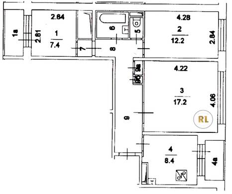
База каталог, Кол-во подъездов: 4, Имеется, П-30, Москва, Марфино, Площадь парковки: 0, Пассажирский лифт: 4, От метро: 1290, Северо-Восточный, нет, Наименьшее кол-во этажей: 9, Наибольшее кол-во этажей: 9, Улица Милашенкова, Кол-во помещений: 144, Кол-во нежилых помещений: 0, Год ввода в эксплуатацию: 1969, 3-комн, Кол-во жилых помещений: 144, Не присвоен, дом 1В, нет, да, да, да, да, нет, Имеется, Грузовых лифтов: 0, Год постройки: 1969, улица Академика Комарова, 37.598735, 55.828561
Свяжитесь со мной на счет цены
10 дн.
T55S828561L37S598735T

На карте


Условия сделки

Источник


Старт продаж

Возможно заинтересует