Top.Mail.Ru

Коптевская ул., д. 16, к. 1

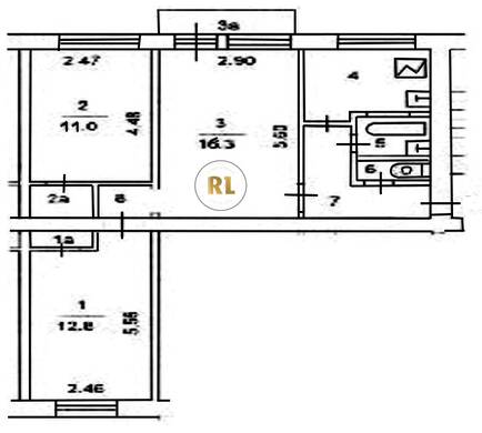
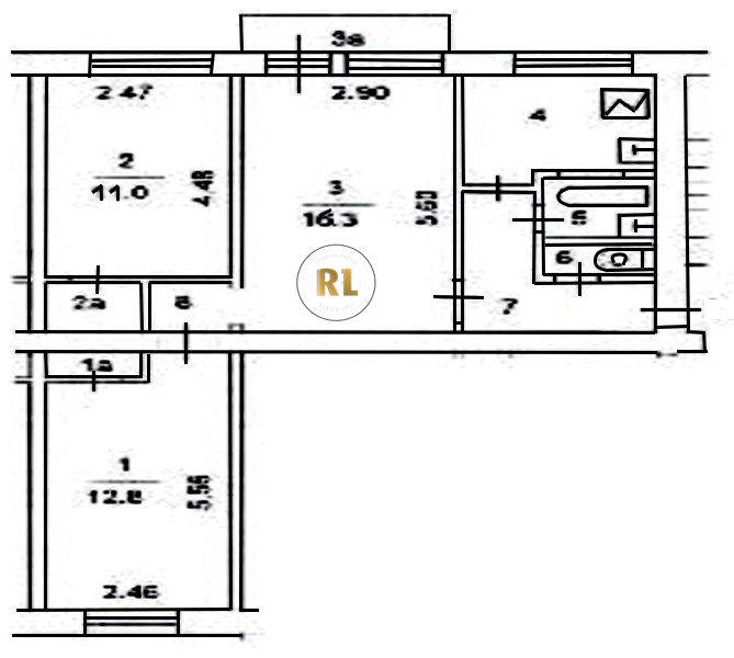
База каталог, Кол-во подъездов: 4, I-511, Москва, Коптево, Площадь парковки: 0, Пассажирский лифт: 0, От метро: 1340, Северный, нет, Наименьшее кол-во этажей: 5, Наибольшее кол-во этажей: 5, Коптево, Кол-во помещений: 80, Кол-во нежилых помещений: 0, Год ввода в эксплуатацию: 1964, 3-комн, Кол-во жилых помещений: 80, А, дом 16, корпус 1, нет, да, да, да, да, нет, Грузовых лифтов: 0, Год постройки: 1964, Коптевская улица, 37.519440, 55.828855
Свяжитесь со мной на счет цены
10 дн.
T55S828855L37S519440T

На карте


Условия сделки

Источник


Старт продаж

Возможно заинтересует