Top.Mail.Ru

Коптевская ул., д. 16, к. 2

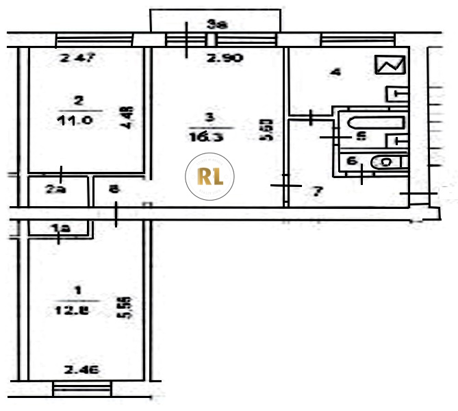
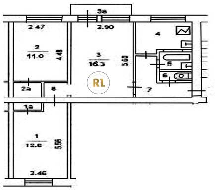
База каталог, Кол-во подъездов: 4, I-511, Москва, Коптево, Площадь парковки: 0, Пассажирский лифт: 0, От метро: 1310, Северный, нет, Наименьшее кол-во этажей: 5, Наибольшее кол-во этажей: 5, Коптево, Кол-во помещений: 64, Кол-во нежилых помещений: 0, Год ввода в эксплуатацию: 1966, 3-комн, Кол-во жилых помещений: 64, А, дом 16, корпус 2, нет, да, да, да, да, нет, Грузовых лифтов: 0, Год постройки: 1966, Коптевская улица, 37.518497, 55.828991
Свяжитесь со мной на счет цены
10 дн.
T55S828991L37S518497T

На карте


Условия сделки

Источник


Старт продаж

Возможно заинтересует