Top.Mail.Ru

Уваровский переулок, д. 3

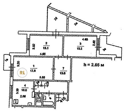
База каталог, Кол-во подъездов: 7, Имеется, П-3/16, Москва, Митино, Площадь парковки: 0, Пассажирский лифт: 7, От метро: 2250, Северо-Западный, нет, Наименьшее кол-во этажей: 9, Наибольшее кол-во этажей: 14, Митино, Кол-во помещений: 316, Кол-во нежилых помещений: 14, Год ввода в эксплуатацию: 1998, 3-комн, Кол-во жилых помещений: 302, Не присвоен, дом 3, нет, да, да, нет, нет, нет, Имеется, Грузовых лифтов: 7, Год постройки: 1998, Уваровский переулок, 37.351536, 55.831317
Свяжитесь со мной на счет цены
10 дн.
T55S831317L37S351536T

На карте


Условия сделки

Источник


Старт продаж

Возможно заинтересует