Top.Mail.Ru

Коптевский бульвар, д. 19

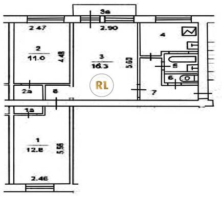
База каталог, Кол-во подъездов: 4, I-511, Москва, Коптево, Площадь парковки: 0, Пассажирский лифт: 0, От метро: 1100, Северный, нет, Наименьшее кол-во этажей: 5, Наибольшее кол-во этажей: 5, Коптево, Кол-во помещений: 60, Кол-во нежилых помещений: 0, Год ввода в эксплуатацию: 1960, 3-комн, Кол-во жилых помещений: 60, С, дом 19, нет, да, да, да, да, нет, Грузовых лифтов: 0, Год постройки: 1960, Коптевский бульвар, 37.521632, 55.831555
Свяжитесь со мной на счет цены
10 дн.
T55S831555L37S521632T

На карте


Условия сделки

Источник


Старт продаж

Возможно заинтересует