Top.Mail.Ru

Нарвская ул., д. 1

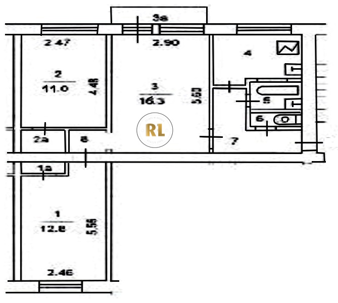
База каталог, Кол-во помещений: 0, I-511, Москва, Войковский, Площадь парковки: 0, Пассажирский лифт: 0, От метро: 1830, Северный, нет, Наименьшее кол-во этажей: 5, Наибольшее кол-во этажей: 5, Водный стадион, Кол-во подъездов: 4, Год ввода в эксплуатацию: 1965, Кол-во нежилых помещений: 0, 3-комн, Кол-во жилых помещений: 0, дом 1, нет, да, да, да, нет, нет, Грузовых лифтов: 0, Год постройки: 1965, Нарвская улица, 37.506828, 55.831706
Свяжитесь со мной на счет цены
10 дн.
T55S831706L37S506828T

На карте


Условия сделки

Источник


Старт продаж

Возможно заинтересует