Top.Mail.Ru

Нарвская ул., д. 1А, к. 1

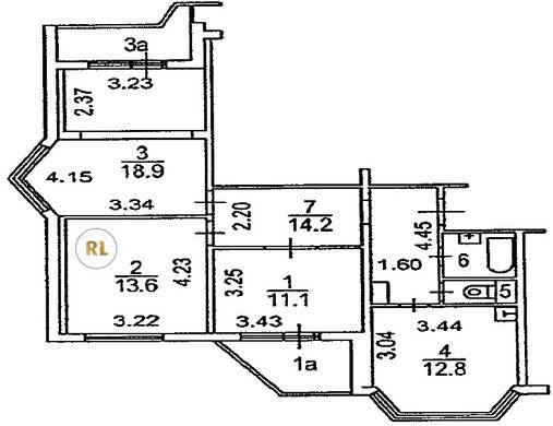
База каталог, Кол-во подъездов: 4, Имеется, П-44T, Москва, Войковский, Площадь парковки: 0, Пассажирский лифт: 4, От метро: 1800, Северный, нет, Наименьшее кол-во этажей: 17, Наибольшее кол-во этажей: 17, Водный стадион, Кол-во помещений: 248, Кол-во нежилых помещений: 6, Год ввода в эксплуатацию: 2011, 3-комн, Кол-во жилых помещений: 242, Не присвоен, дом 1А, корпус 1, нет, да, да, да, нет, нет, Имеется, Грузовых лифтов: 4, Год постройки: 2011, Нарвская улица, 37.503540, 55.831908
Свяжитесь со мной на счет цены
10 дн.
T55S831908L37S503540T

На карте


Условия сделки

Источник


Старт продаж

Возможно заинтересует