Top.Mail.Ru

бульвар Матроса Железняка, д. 18/12

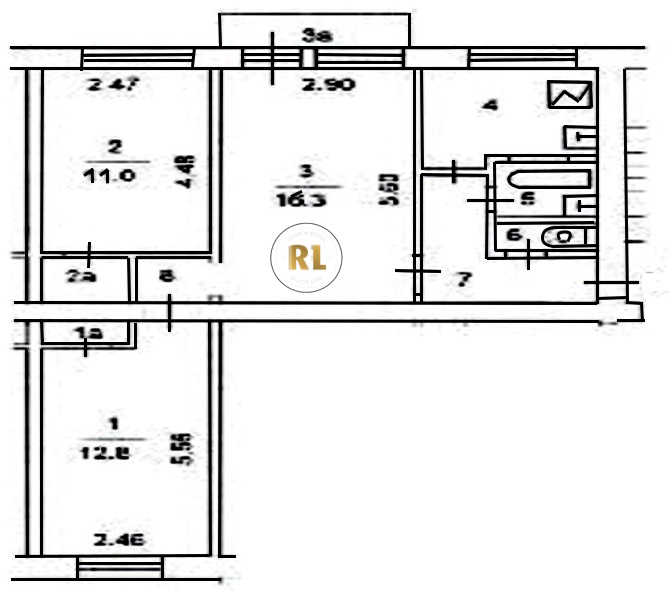
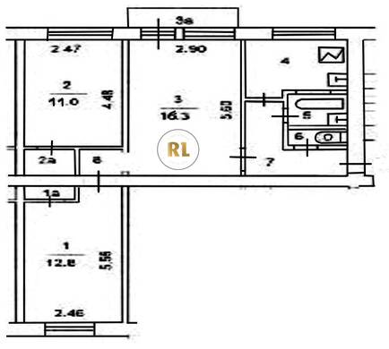
База каталог, Кол-во подъездов: 4, Отсутствует, I-511, Москва, Коптево, Площадь парковки: 0, Пассажирский лифт: 0, От метро: 1180, Северный, нет, Наименьшее кол-во этажей: 5, Наибольшее кол-во этажей: 5, Коптево, Кол-во помещений: 80, Кол-во нежилых помещений: 0, Год ввода в эксплуатацию: 1960, 3-комн, Кол-во жилых помещений: 80, С, дом 18/12, нет, да, да, да, да, нет, Отсутствует, Грузовых лифтов: 0, Год постройки: 1960, бульвар Матроса Железняка, 37.527373, 55.831939
Свяжитесь со мной на счет цены
10 дн.
T55S831939L37S527373T

На карте


Условия сделки

Источник


Старт продаж

Возможно заинтересует