Top.Mail.Ru

Сельскохозяйственная ул., д. 7/1

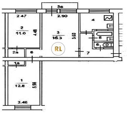
База каталог, Кол-во подъездов: 4, Отсутствует, I-511, Москва, Ростокино, Площадь парковки: 2088, Пассажирский лифт: 0, От метро: 680, Северо-Восточный, да, Наименьшее кол-во этажей: 5, Наибольшее кол-во этажей: 5, Улица Сергея Эйзенштейна, Кол-во помещений: 80, Кол-во нежилых помещений: 0, Год ввода в эксплуатацию: 1962, 3-комн, Кол-во жилых помещений: 80, D, дом 7/1, нет, да, да, да, да, да, Имеется, Грузовых лифтов: 0, Год постройки: 1962, Сельскохозяйственная улица, 37.649049, 55.833157
Свяжитесь со мной на счет цены
10 дн.
T55S833157L37S649049T

На карте


Условия сделки

Источник


Старт продаж

Возможно заинтересует