Top.Mail.Ru

Коптевская ул., д. 26, к. 4

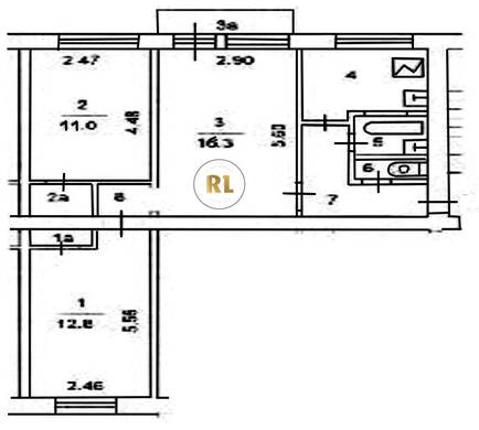
База каталог, Кол-во подъездов: 4, Отсутствует, I-511, Москва, Коптево, Площадь парковки: 0, Пассажирский лифт: 0, От метро: 730, Северный, нет, Наименьшее кол-во этажей: 5, Наибольшее кол-во этажей: 5, Коптево, Кол-во помещений: 50, Кол-во нежилых помещений: 2, Год ввода в эксплуатацию: 1956, 3-комн, Кол-во жилых помещений: 48, С, дом 26, корпус 4, нет, да, да, да, да, да, Отсутствует, Грузовых лифтов: 0, Год постройки: 1956, Коптевская улица, 37.522629, 55.834285
17 000 000 Р
10 дн.
T55S834285L37S522629T
+

На карте


Условия сделки

Источник