Top.Mail.Ru

3-й Михалковский переулок, д. 9

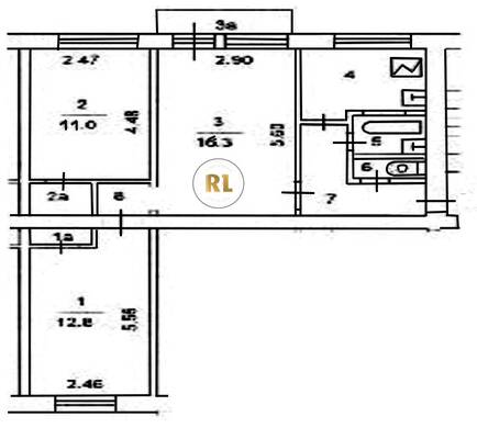
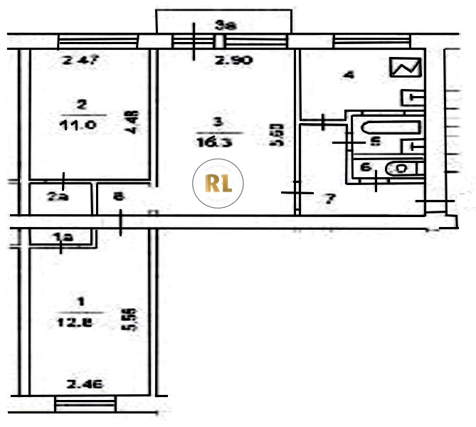
База каталог, Кол-во подъездов: 6, Отсутствует, I-511, Москва, Коптево, Площадь парковки: 0, Пассажирский лифт: 0, От метро: 960, Северный, нет, Наименьшее кол-во этажей: 5, Наибольшее кол-во этажей: 5, Коптево, Кол-во помещений: 85, Кол-во нежилых помещений: 5, Год ввода в эксплуатацию: 1973, 3-комн, Кол-во жилых помещений: 80, С, дом 9, нет, да, да, да, да, да, Отсутствует, Грузовых лифтов: 0, Год постройки: 1973, 3-й Михалковский переулок, 37.530220, 55.834345
Свяжитесь со мной на счет цены
10 дн.
T55S834345L37S530220T

На карте


Условия сделки

Источник


Старт продаж

Возможно заинтересует