Top.Mail.Ru

Коптевская ул., д. 79/1

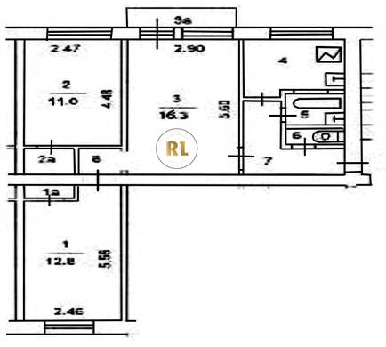
База каталог, Кол-во подъездов: 2, Отсутствует, I-511, Москва, Коптево, Площадь парковки: 0, Пассажирский лифт: 0, От метро: 680, Северный, нет, Наименьшее кол-во этажей: 5, Наибольшее кол-во этажей: 5, Коптево, Кол-во помещений: 41, Кол-во нежилых помещений: 1, Год ввода в эксплуатацию: 1962, 3-комн, Кол-во жилых помещений: 40, С, дом 79/1, нет, да, да, да, да, да, Отсутствует, Грузовых лифтов: 0, Год постройки: 1962, Коптевская улица, 37.520150, 55.834401
Свяжитесь со мной на счет цены
10 дн.
T55S834401L37S520150T

На карте


Условия сделки

Источник


Старт продаж

Возможно заинтересует