Top.Mail.Ru

бульвар Матроса Железняка, д. 26/11

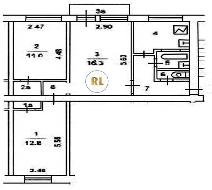
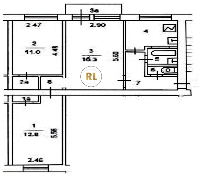
База каталог, Кол-во подъездов: 4, Отсутствует, I-511, Москва, Коптево, Площадь парковки: 0, Пассажирский лифт: 0, От метро: 920, Северный, нет, Наименьшее кол-во этажей: 5, Наибольшее кол-во этажей: 5, Коптево, Кол-во помещений: 83, Кол-во нежилых помещений: 3, Год ввода в эксплуатацию: 1959, 3-комн, Кол-во жилых помещений: 80, С, дом 26/11, нет, да, да, да, да, да, Отсутствует, Грузовых лифтов: 0, Год постройки: 1959, бульвар Матроса Железняка, 37.529546, 55.834517
Свяжитесь со мной на счет цены
10 дн.
T55S834517L37S529546T

На карте


Условия сделки

Источник


Старт продаж

Возможно заинтересует