Top.Mail.Ru

Коптевская ул., д. 26, к. 5

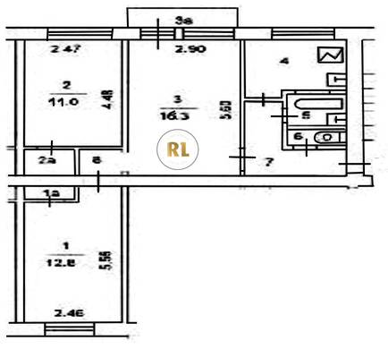
База каталог, Кол-во подъездов: 2, Отсутствует, I-511, Москва, Коптево, Площадь парковки: 0, Пассажирский лифт: 0, От метро: 660, Северный, нет, Наименьшее кол-во этажей: 5, Наибольшее кол-во этажей: 5, Коптево, Кол-во помещений: 39, Кол-во нежилых помещений: 7, Год ввода в эксплуатацию: 1953, 3-комн, Кол-во жилых помещений: 32, С, дом 26, корпус 5, нет, да, да, да, да, да, Отсутствует, Грузовых лифтов: 0, Год постройки: 1953, Коптевская улица, 37.522863, 55.834714
Свяжитесь со мной на счет цены
10 дн.
T55S834714L37S522863T

На карте


Условия сделки

Источник


Старт продаж

Возможно заинтересует