Top.Mail.Ru

Коптевская ул., д. 26, к. 2

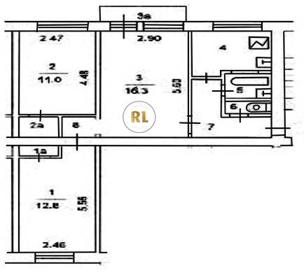
База каталог, Кол-во подъездов: 3, Отсутствует, I-511, Москва, Коптево, Площадь парковки: 0, Пассажирский лифт: 0, От метро: 580, Северный, нет, Наименьшее кол-во этажей: 5, Наибольшее кол-во этажей: 5, Коптево, Кол-во помещений: 48, Кол-во нежилых помещений: 4, Год ввода в эксплуатацию: 1955, 3-комн, Кол-во жилых помещений: 44, С, дом 26, корпус 2, да, да, да, да, да, да, Отсутствует, Грузовых лифтов: 0, Год постройки: 1955, Коптевская улица, 37.521614, 55.835002
Свяжитесь со мной на счет цены
10 дн.
T55S835002L37S521614T

На карте


Условия сделки

Источник


Старт продаж

Возможно заинтересует