Top.Mail.Ru

Коптевская ул., д. 26, к. 6

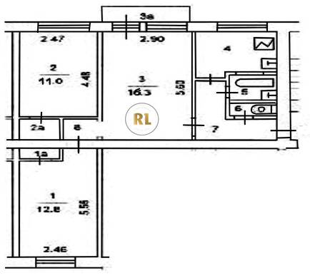
База каталог, Кол-во подъездов: 4, Отсутствует, I-511, Москва, Коптево, Площадь парковки: 0, Пассажирский лифт: 0, От метро: 600, Северный, нет, Наименьшее кол-во этажей: 5, Наибольшее кол-во этажей: 5, Коптево, Кол-во помещений: 46, Кол-во нежилых помещений: 5, Год ввода в эксплуатацию: 1954, 3-комн, Кол-во жилых помещений: 41, С, дом 26, корпус 6, нет, да, да, да, да, да, Отсутствует, Грузовых лифтов: 0, Год постройки: 1954, Коптевская улица, 37.523097, 55.835341
Свяжитесь со мной на счет цены
10 дн.
T55S835341L37S523097T

На карте


Условия сделки

Источник


Старт продаж

Возможно заинтересует